Дом из несъемной опалубки Арктик-5 двухэтажный 14х14

Получить презентацию проекта

Лучший дом для вашей семьи

Представляем проект дома премиального сегмента "Арктик-5" созданный архитекторами компании Монолит-домстрой по эскизам заказчика. Достоинство этого дома - широкие светлые окна, которые создают чувство легкости и света. Современные конструкции делают возможным увеличение площади остекления, не повышая теплопотери дома. Необходимо сказать, что вопреки ошибочному мнению большие окна приводят к снижению стоимости строительства дома.

Построим вашу мечту

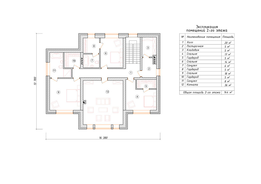
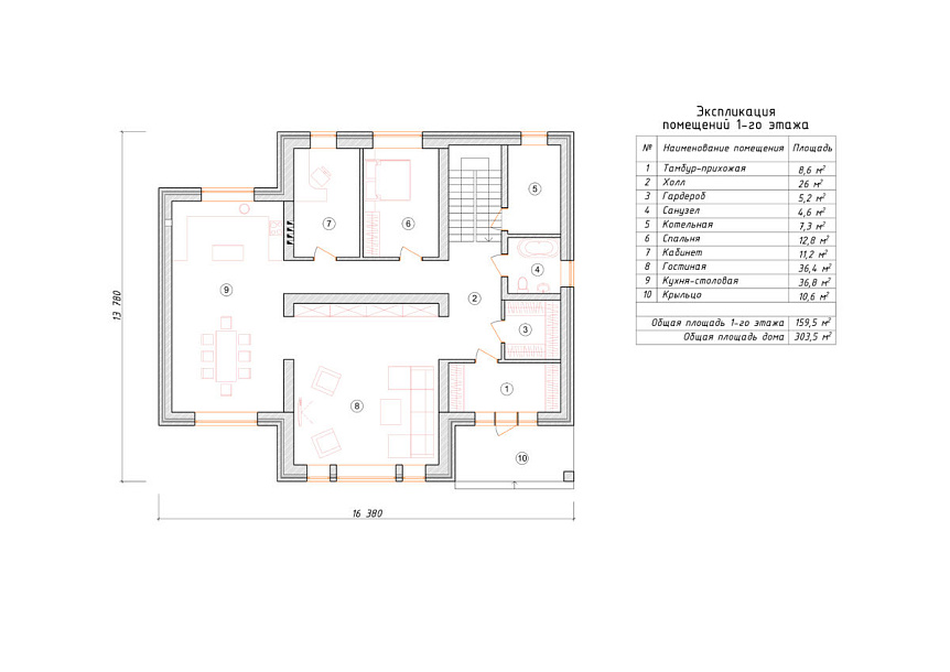
Характеристики проекта

  • Размер дома 14х14 м
  • Число полных этажей 2
  • Высота потолков 3.4 м
  • Мансарда нет
  • Цокольный этаж нет
  • Площадь кухни 9 м2
  • Фундамент Финский фундамент
  • Стены Несъемная опалубка
  • Фасад Штукатурка
  • Навес для машины нет
  • Гараж нет
  • Гараж на 2 машины нет
  • Веранда нет
  • Балкон нет
  • Камин нет
  • Баня нет
  • Бассейн нет
  • Второй свет нет
  • Барбекю нет
  • Стиль дома Европейский

Описание дома

Коттедж двухэтажный плюс объемное чердачное помещение. Планировка внутренних помещений выделятся разумностью и принимает во внимание размещение инженерных систем, вид из окон и расположение сторон света. Поэтажные планы дома включают 4 уютных спальни и 3 санузла. Полезная площадь всех помещений коттеджа составляет 304 м2, площадь кухни 9 м2. В этом коттедже мы предусматриваем вариант фундамента - бетонная лента мелкого заложения с утеплением Такой тип фундамента оптимально подходит, когда в пятне застройки большой перепад высоты рельефа, или хозяин дома хочет поднять выше над землей уровень комнат первого этажа. Материал несущих стен здания - несъемная опалубка. По решению заказчика наши конструкторы переделают этот проект под другой материал стен, архитекторы переработают расположение комнат и рассмотрят любые другие требования клиента.

У вас уже есть проект!

Давайте его обсудим!

Мы составим смету и оптимизируем расходы. Доработаем ваш проект, или создадим новый.
Мы ответим Вам в течение 24 часов
Прикрепить файл

Похожие проекты

Дом из несъемной опалубки Ливадия двухэтажный 14х14

Получить презентацию проекта

Дом из пеноблоков Лахти 6 двухэтажный 13х13

Получить презентацию проекта
Записаться на встречу в офисе
Прикрепить файл
x
x
x
Позвонить в компанию
или
Заказать обратный звонок
Обратная форма связи
Заявка на бесплатную
видеоконсультацию