Дом из керамических блоков Мельбурн-9 двухэтажный 11х11

Получить презентацию проекта

Лучший дом для вашей семьи

Представляем проект дома среднего ценового диапазона "Мельбурн-9" разработанный нашими конструкторами по индивидуальному заказу. Эксклюзивность дома это - приятное ощущение уюта, создаваемое красивым камином. Кроме эстетического удовольствия камин является удобным обогревателем, который отлично обогреет дом зимой.

Построим вашу мечту

Характеристики проекта

  • Размер дома 11х11 м
  • Число полных этажей 2
  • Высота потолков 3 м
  • Мансарда нет
  • Цокольный этаж нет
  • Площадь кухни 23 м2
  • Фундамент УШП
  • Стены Керамические блоки
  • Фасад Облицовочный кирпич
  • Навес для машины нет
  • Гараж нет
  • Гараж на 2 машины нет
  • Веранда да
  • Балкон да
  • Камин да
  • Баня нет
  • Бассейн нет
  • Второй свет нет
  • Барбекю нет
  • Стиль дома Европейский

Описание дома

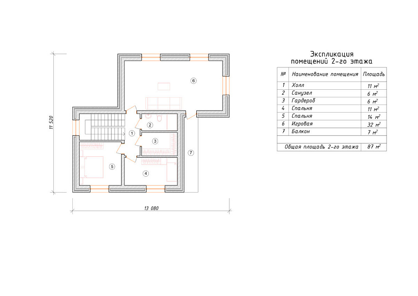
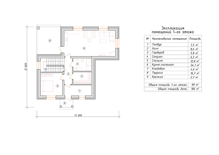
Проектом предусматривается два полных этажа и холодный чердак. Компоновка пространства дома выделятся разумностью и принимает во внимание размещение инженерных систем, вид из окон и расположение сторон света. Поэтажные планы дома предусматривают 3 уютных спальни и 2 санузла. Полезная площадь всех помещений составляет 186 м2, размер кухонного пространства 23 м2. В этом доме мы рекомендуем применить тип фундамента - УШП фундамент. Это наиболее энергоэффективный фундамент, оптимально подходящий для коттеджного строительства в нашем холодном климате. Материал несущих конструкций этого дома - керамические блоки. По решению заказчика мы можем переделать проект под другой материал несущих конструкций, детализировать жилое пространство коттеджа и учесть любые другие пожелания заказчика.

У вас уже есть проект!

Давайте его обсудим!

Мы составим смету и оптимизируем расходы. Доработаем ваш проект, или создадим новый.
Мы ответим Вам в течение 24 часов
Прикрепить файл

Похожие проекты

Дом из газосиликата Ивар 2 двухэтажный 10х10

Получить презентацию проекта

Дом из керамических блоков Калдис двухэтажный 10x12

Получить презентацию проекта
Записаться на встречу в офисе
Прикрепить файл
x
x
x
Позвонить в компанию
или
Заказать обратный звонок
Обратная форма связи
Заявка на бесплатную
видеоконсультацию