Дом из пеноблоков Мельбурн-7 двухэтажный 11х11

Получить презентацию проекта

Лучший дом для вашей семьи

Представляем проект загородного дома недорогого класса "Мельбурн-7" спроектированный в компании Монолит-домстрой по индивидуальному заказу. Очевидным преимуществом проекта является неповторимое чувство уюта, создаваемое роскошным камином. Кроме эстетического удовольствия камин является эффективным обогревателем, который быстро согреет коттедж холодными зимними вечерами.

Построим вашу мечту

Характеристики проекта

  • Размер дома 11х11 м
  • Число полных этажей 2
  • Высота потолков 3 м
  • Мансарда нет
  • Цокольный этаж нет
  • Площадь кухни 23 м2
  • Фундамент УШП
  • Стены Пеноблоки
  • Фасад Штукатурка
  • Навес для машины нет
  • Гараж нет
  • Гараж на 2 машины нет
  • Веранда да
  • Балкон да
  • Камин да
  • Баня нет
  • Бассейн нет
  • Второй свет нет
  • Барбекю нет
  • Стиль дома Классический Европейский

Описание дома

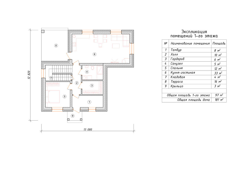
Проектом предусматривается двухэтажный дом и практичный чердак. Планировка жилых помещений выделятся функциональностью и принимает во внимание размещение инженерных систем, вид из окон и расположение сторон света. Планировка здания включает 3 комфортных спальни и 2 санузла. Планировочная площадь всех помещений составляет 181 м2, площадь кухонного пространства 23 м2. В данном случае мы предлагаем использовать фундамент - утепленный шведский фундамент. Это самый современный фундамент, оптимально подходящий для коттеджного строительства в нашей климатической зоне. По проекту материал стен коттеджа - пеноблоки. В случае необходимости наши конструкторы поменяют данный проект под другой материал, архитекторы актуализируют планировки и примут во внимание другие ваши идеи.

У вас уже есть проект!

Давайте его обсудим!

Мы составим смету и оптимизируем расходы. Доработаем ваш проект, или создадим новый.
Мы ответим Вам в течение 24 часов
Прикрепить файл

Похожие проекты

Вы недавно смотрели

Дом из газобетона Ивар двухэтажный 10х10

Получить презентацию проекта

Дом из поризованного кирпича Калдис 2 двухэтажный 10x12

Получить презентацию проекта
Записаться на встречу в офисе
Прикрепить файл
x
x
x
Позвонить в компанию
или
Заказать обратный звонок
Обратная форма связи
Заявка на бесплатную
видеоконсультацию