Дом из газосиликата Мельбурн-5 двухэтажный 12х12

Получить презентацию проекта

Лучший дом для вашей семьи

Представляем вашему вниманию коттедж недорогого сегмента "Мельбурн-5" разработанный нашими архитекторами и конструкторами по результатам встречи с заказчиком в нашем офисе. Основным достоинством представленного дома является приятное ощущение теплоты, создаваемое функциональным и красивым камином. Кроме эстетического наслаждения камин является важным нагревательным прибором, который отлично согреет помещение в холодное время года.

Построим вашу мечту

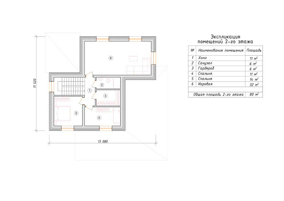
Характеристики проекта

  • Размер дома 12х12 м
  • Число полных этажей 2
  • Высота потолков 3 м
  • Мансарда нет
  • Цокольный этаж нет
  • Площадь кухни 36 м2
  • Фундамент УШП
  • Стены Газосиликат
  • Фасад Штукатурка
  • Навес для машины нет
  • Гараж да
  • Гараж на 2 машины нет
  • Веранда да
  • Балкон нет
  • Камин да
  • Баня нет
  • Бассейн нет
  • Второй свет нет
  • Барбекю нет
  • Стиль дома Русский Европейский

Описание дома

Коттедж в два полных этажа и нежилой чердак. Планировка внутреннего пространства выделятся разумностью и принимает во внимание размещение инженерных систем, вид из окон и расположение сторон света. Поэтажные планы здания предусматривают 3 удобных спальни и 2 санузла. Полезная площадь всех помещений коттеджа составляет 227 м2, размер кухонного пространства 36 м2. В этом проекте мы предусматриваем фундамент - УШП фундамент. Это самый энергоэффективный фундамент, великолепно подходящий для загородного строительства в нашей климатической зоне. Материал несущих конструкций дома - газосиликат. В случае необходимости мы можем изменить проект под другой материал несущих конструкций, актуализировать поэтажные планы и учесть любые другие условия заказчика.

У вас уже есть проект!

Давайте его обсудим!

Мы составим смету и оптимизируем расходы. Доработаем ваш проект, или создадим новый.
Мы ответим Вам в течение 24 часов
Прикрепить файл

Похожие проекты

Дом из пеноблоков Гассен 5 двухэтажный 13х13

Получить презентацию проекта

Дом из теплоблоков Гассен 7 двухэтажный 12х12

Получить презентацию проекта
Записаться на встречу в офисе
Прикрепить файл
x
x
x
Позвонить в компанию
или
Заказать обратный звонок
Обратная форма связи
Заявка на бесплатную
видеоконсультацию