Дом из газосиликата Мельбурн-4 двухэтажный 12х12

Получить презентацию проекта

Лучший дом для вашей семьи

Представляем вашему вниманию недорогой в эксплуатации дом "Мельбурн-4" спроектированный нашими архитекторами и конструкторами по индивидуальному заказу. Важным преимуществом этого проекта является неповторимое чувство уюта, создаваемое красивым камином. Кроме эстетического удовольствия камин выступает в качестве функционального обогревателя, который быстро обогреет помещение зимними вечерами.

Построим вашу мечту

Характеристики проекта

  • Размер дома 12х12 м
  • Число полных этажей 2
  • Высота потолков 3 м
  • Мансарда нет
  • Цокольный этаж нет
  • Площадь кухни 36 м2
  • Фундамент УШП
  • Стены Газосиликат
  • Фасад Комбинированный фасад
  • Навес для машины нет
  • Гараж да
  • Гараж на 2 машины нет
  • Веранда да
  • Балкон нет
  • Камин да
  • Баня нет
  • Бассейн нет
  • Второй свет нет
  • Барбекю нет
  • Стиль дома Европейский

Описание дома

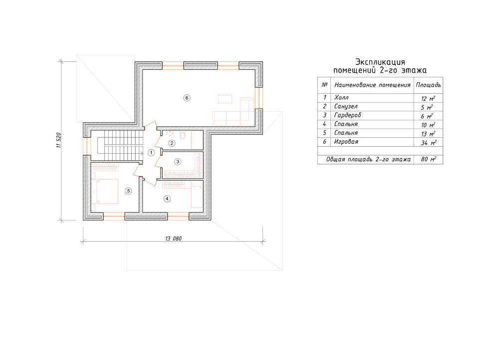
Коттедж в два этажа с практичным чердаком. Планировка пространства дома выделятся функциональностью и принимает во внимание размещение инженерных систем, вид из окон и расположение сторон света. Поэтажные планы включают 3 комфортных спальни и 2 санузла. Полезная площадь всех помещений дома составляет 217 м2, размер кухни 36 м2. В данном проекте мы предусматриваем вариант фундамента - УШП плита. Это наиболее энергоэффективный фундамент, идеально подходящий для коттеджного строительства в нашей климатической зоне. По проекту материал несущих стен коттеджа - газосиликат. По вашему решению мы можем переделать проект под другой материал стен, актуализировать планы этажей дома и принять по внимание другие условия заказчика.

У вас уже есть проект!

Давайте его обсудим!

Мы составим смету и оптимизируем расходы. Доработаем ваш проект, или создадим новый.
Мы ответим Вам в течение 24 часов
Прикрепить файл

Похожие проекты

Дом из поризованного кирпича Форма 2 двухэтажный 12х12

Получить презентацию проекта

Дом из керамзитобетона Гассен 6 двухэтажный 12х12

Получить презентацию проекта
Записаться на встречу в офисе
Прикрепить файл
x
x
x
Позвонить в компанию
или
Заказать обратный звонок
Обратная форма связи
Заявка на бесплатную
видеоконсультацию