Дом на монолитном каркасе Сапфир-8 двухэтажный 10х10

Получить презентацию проекта

Лучший дом для вашей семьи

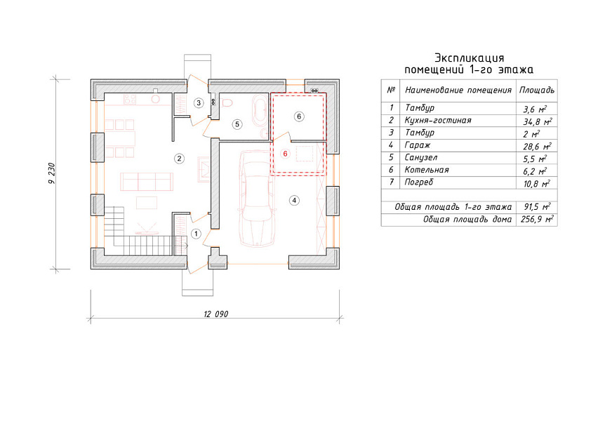
Представляем вашему вниманию коттедж бюджетного ценового диапазона "Сапфир-8" созданный нашими специалистами по рекомендациям заказчика. Проект этого дома характеризуется в первую очередь небольшой площадью застройки при весьма приличной внутренней общей площади и наличием гаража. Уникальной чертой данного дома является практичный погреб из ПВХ для хранения заготовок на зиму. Погреб закопан под тепловым контуром дома и в любое время года сохраняет постоянную температуру и влажность воздуха. Погреб поставляется укомплектованным, как готовое изделие, в том числе лестница, полки и вытяжка.

Построим вашу мечту

Характеристики проекта

  • Размер дома 10х10 м
  • Число полных этажей 2
  • Высота потолков 3 м
  • Мансарда да
  • Цокольный этаж нет
  • Площадь кухни 8 м2
  • Фундамент Плита
  • Стены Дома на монолитном каркасе
  • Фасад Штукатурка
  • Навес для машины нет
  • Гараж да
  • Гараж на 2 машины нет
  • Веранда нет
  • Балкон да
  • Камин да
  • Баня нет
  • Бассейн нет
  • Второй свет нет
  • Барбекю нет
  • Стиль дома Европейский

Описание дома

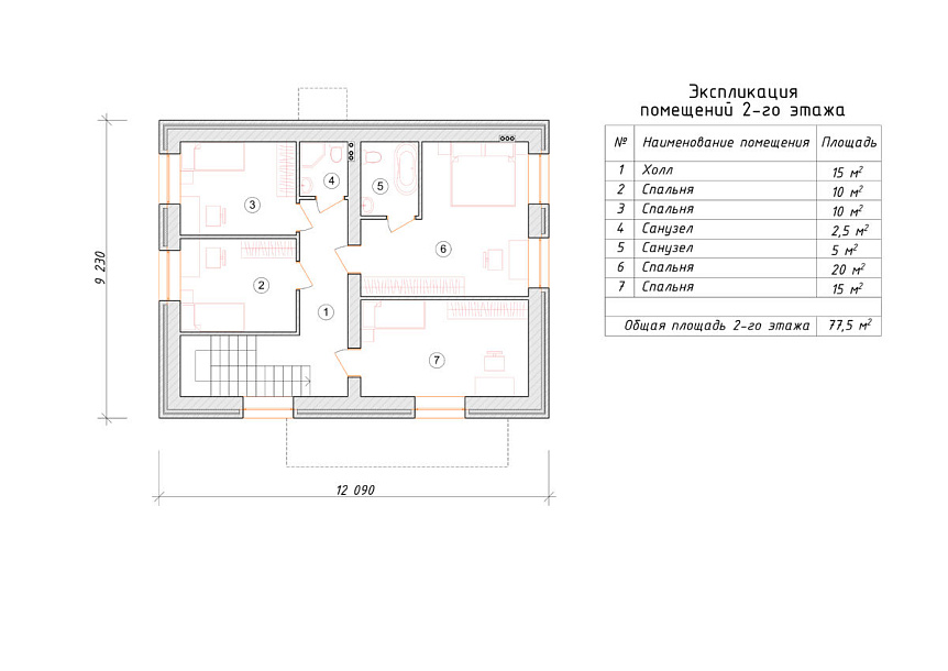
Дом в два этажа плюс функциональная мансарда. Планировка жилых помещений выделятся разумностью и принимает во внимание размещение инженерных систем, вид из окон и расположение сторон света. Проектом предусматривается 4 комфортных спальни и 3 санузла. Планировочная площадь помещений дома составляет 257 м2, размер кухонного пространства 8 м2. В данном коттедже мы рекомендуем использовать фундамент - утепленная плита толщиной 300 мм. Это практичный и наиболее экономически выгодный фундамент из всех. Стены этого коттеджа - монолитный каркас. По вашему решению мы можем изменить данный проект под другой материал, адаптировать расположение помещений и принять по внимание любые другие ваши пожелания.

У вас уже есть проект!

Давайте его обсудим!

Мы составим смету и оптимизируем расходы. Доработаем ваш проект, или создадим новый.
Мы ответим Вам в течение 24 часов
Прикрепить файл

Похожие проекты

Дом на монолитном каркасе Сапфир-3 двухэтажный 10х10

Получить презентацию проекта

Дом из керамических блоков Магма двухэтажный 14х14

Получить презентацию проекта
Записаться на встречу в офисе
Прикрепить файл
x
x
x
Позвонить в компанию
или
Заказать обратный звонок
Обратная форма связи
Заявка на бесплатную
видеоконсультацию