Дом на монолитном каркасе Арктик двухэтажный 15х15

Получить презентацию проекта

Лучший дом для вашей семьи

Представляем величественный дом "Арктик" спроектированный нашими конструкторами по эскизам заказчика. Очевидное преимущество данного проекта это - праздничное настроение внутреннего пространства дома, которое возникает благодаря большой площади остекления. Считаем необходимым сказать, что вопреки ошибочному мнению большие окна не приводят к росту стоимости строительства дома. В настоящее время технологии производства позволяют увеличивать размер окон, не уменьшая энергоэффективность дома.

Построим вашу мечту

Характеристики проекта

  • Размер дома 15х15 м
  • Число полных этажей 2
  • Высота потолков 3.4 м
  • Мансарда нет
  • Цокольный этаж нет
  • Площадь кухни 15 м2
  • Фундамент Финский фундамент
  • Стены Дома на монолитном каркасе
  • Фасад Облицовочный кирпич
  • Навес для машины нет
  • Гараж нет
  • Гараж на 2 машины нет
  • Веранда нет
  • Балкон нет
  • Камин нет
  • Баня нет
  • Бассейн нет
  • Второй свет нет
  • Барбекю нет
  • Стиль дома Американский Европейский

Описание дома

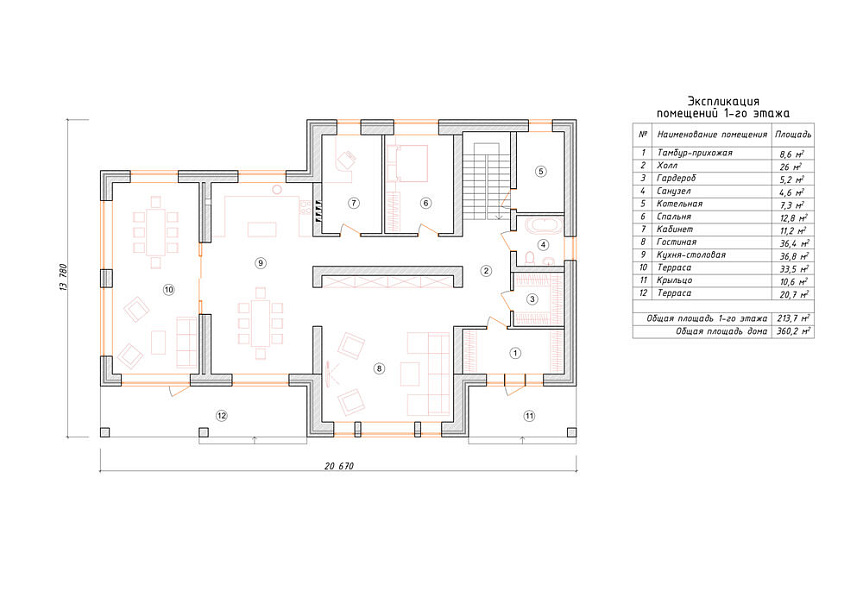
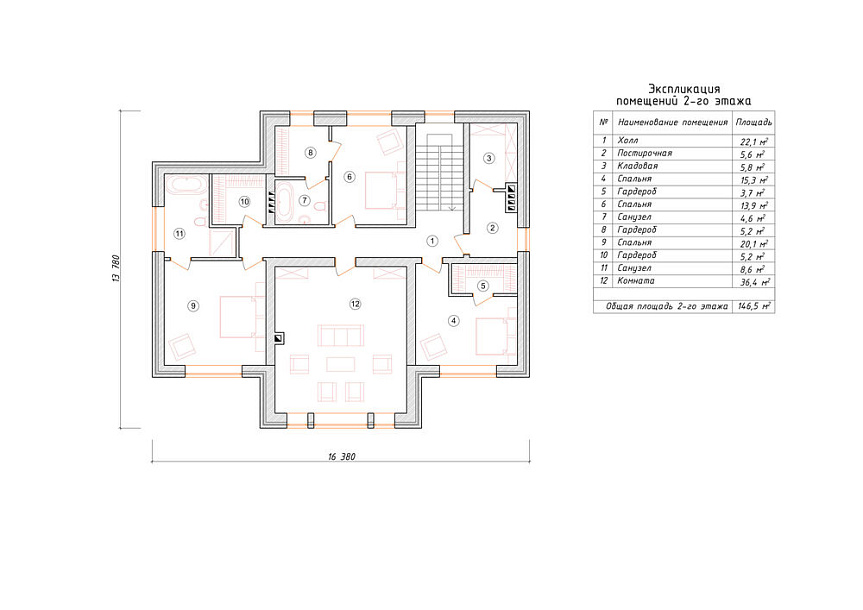
Проектом предусматривается два полных этажа с полезным чердачным помещением. Компоновка этажей выделятся разумностью и принимает во внимание размещение инженерных систем, вид из окон и расположение сторон света. Планировочные планы дома предусматривают 4 уютных спальни и 3 санузла. Планировочная площадь всех помещений дома составляет 360 м2, площадь кухонного пространства 15 м2. В этом проекте мы советуем применить тип фундамента - монолитная лента мелко-заглубленная с утеплением ЭППС Такой вариант фундамента хорошо подходит если под домом значительный перепад высоты, или хозяин дома просит приподнять над землей уровень помещений. Стены данного дома - монолитный каркас. Мы можем переделать проект под другой материал стен, адаптировать расположение комнат и принять по внимание любые другие требования заказчика.

У вас уже есть проект!

Давайте его обсудим!

Мы составим смету и оптимизируем расходы. Доработаем ваш проект, или создадим новый.
Мы ответим Вам в течение 24 часов
Прикрепить файл

Похожие проекты

Вы недавно смотрели

Дом из керамзитобетона Лахти 5 двухэтажный 11х11

Получить презентацию проекта

Дом из керамических блоков Мякинино 7 двухэтажный 13х13

Получить презентацию проекта
Записаться на встречу в офисе
Прикрепить файл
x
x
x
Позвонить в компанию
или
Заказать обратный звонок
Обратная форма связи
Заявка на бесплатную
видеоконсультацию