Дом из несъемной опалубки Мажестик двухэтажный 14х14

Получить презентацию проекта

Лучший дом для вашей семьи

Представляем проект загородного дома высокого ценового диапазона "Мажестик" разработанный конструкторами нашей компании по техническому заданию заказчика. Очевидное достоинство представленного проекта это - удобная эксплуатируемая крыша. Кровля такого типа экономически прибыльна, потому что позволяет увеличить полезную площадь дома без дополнительных денежных расходов. На этой крыше можно удобно обустроить: джакузи, мангал, зону отдыха, шезлонги для загара, разбить декоративный сад и многое другое. А какой великолепный обзор на окружающий мир будет открываться с крыши вашего дома!

Построим вашу мечту

Характеристики проекта

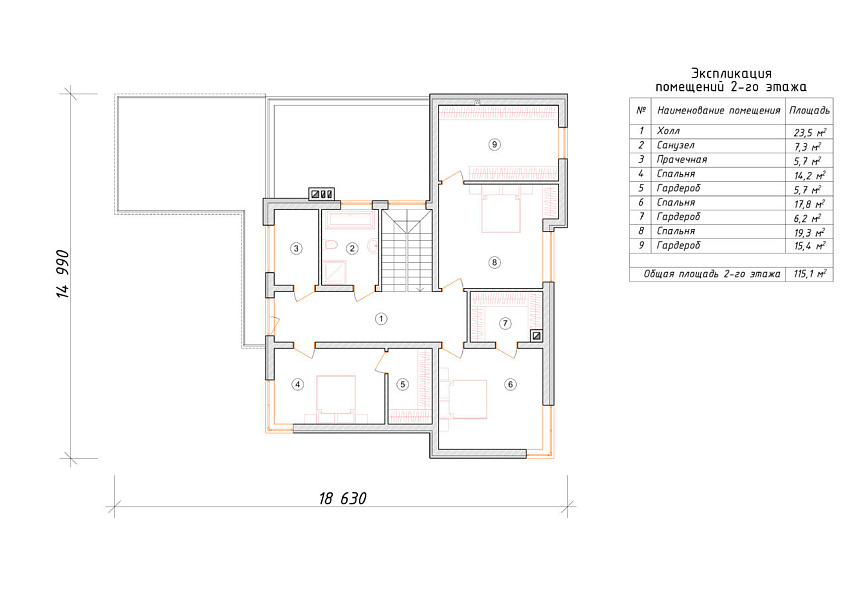
  • Размер дома 14х14 м
  • Число полных этажей 2
  • Высота потолков 3.4 м
  • Мансарда нет
  • Цокольный этаж нет
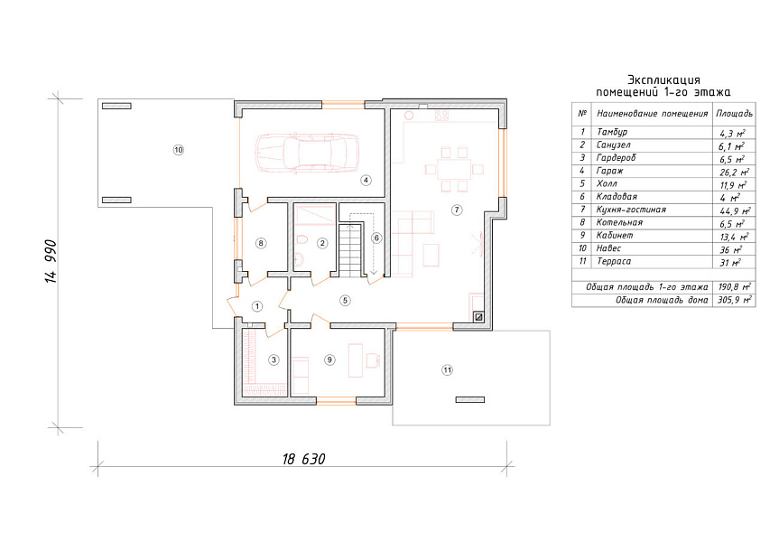
  • Площадь кухни 26 м2
  • Фундамент Финский фундамент
  • Стены Несъемная опалубка
  • Фасад Комбинированный фасад
  • Навес для машины да
  • Гараж да
  • Гараж на 2 машины нет
  • Веранда нет
  • Балкон нет
  • Камин да
  • Баня нет
  • Бассейн нет
  • Второй свет нет
  • Барбекю нет
  • Стиль дома Современный Хай-тек Модерн Лофт Европейский

Описание дома

Дом в два этажа и плоская крыша. Компоновка этажей выделятся разумностью и принимает во внимание размещение инженерных систем, вид из окон и расположение сторон света. Планировка здания предусматривает 3 уютных спальни и 2 санузла. Полезная площадь всех помещений составляет 306 м2, площадь кухонного пространства 26 м2. В этом коттедже мы советуем применить вариант фундамента - бетонная лента мелко-заглубленная утепленная Такой вариант фундамента оптимально подходит, когда на участке большой перепад высоты рельефа, или наш заказчик требует приподнять высотную отметку пола. Материал несущих конструкций данного коттеджа - несъемная опалубка. В случае необходимости мы можем поменять данный проект под другой материал, переработать планировки помещений и рассмотреть другие ваши условия.

У вас уже есть проект!

Давайте его обсудим!

Мы составим смету и оптимизируем расходы. Доработаем ваш проект, или создадим новый.
Мы ответим Вам в течение 24 часов
Прикрепить файл

Похожие проекты

Дом из клееного бруса Стрелец-2 двухэтажный 15х15

Получить презентацию проекта

Дом из щелевого кирпича Акира-3 двухэтажный 15х15

Получить презентацию проекта
Записаться на встречу в офисе
Прикрепить файл
x
x
x
Позвонить в компанию
или
Заказать обратный звонок
Обратная форма связи
Заявка на бесплатную
видеоконсультацию