Дом Лючия-1 двухэтажный 12х12

Получить презентацию проекта

Лучший дом для вашей семьи

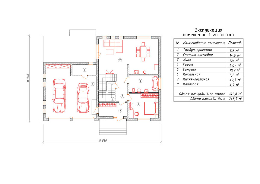
Представляем проект частного дома среднего ценового диапазона "Лючия-1" реализованный конструкторами нашей компании по результатам встречи с заказчиком в нашем офисе. Важная черта проекта это - вместительный гаражный бокс на два автомобиля. Это разумный выбор для семьи, которая владеет несколькими автомобилями. В таком гараже можно с легкостью разместить складские стеллажи и небольшую мастерскую, найти свободное место под садовый инвентарь и инструмент. Просторная площадь позволит смонтировать мойку для автомобилей.

Построим вашу мечту

Характеристики проекта

  • Размер дома 12х12 м
  • Число полных этажей 2
  • Высота потолков 3 м
  • Мансарда нет
  • Цокольный этаж нет
  • Площадь кухни 10 м2
  • Фундамент УШП
  • Стены Ячеистый блок
  • Фасад Облицовочный кирпич
  • Навес для машины нет
  • Гараж нет
  • Гараж на 2 машины да
  • Веранда нет
  • Балкон нет
  • Камин нет
  • Баня нет
  • Бассейн нет
  • Второй свет нет
  • Барбекю нет
  • Стиль дома Современный Хай-тек Модерн Минимализм Лофт Европейский

Описание дома

Дом в два полных этажа с плоской крышей из ПВХ мембраны. Компоновка помещений характеризуется продуманностью и учитывает размещение инженерных систем, вид из окон и расположение сторон света. Планировочные решения здания предусматривают 4 комфортных спальни и 2 санузла. Планировочная площадь всех помещений составляет 249 м2, размер кухонного пространства 10 м2. В данном проекте мы советуем использовать тип фундамента - утепленная шведская плита. Это наиболее современный фундамент, идеально подходящий для загородного строительства в нашем холодном климате. Стены данного дома - несъемная опалубка. Мы можем изменить этот проект под другой материал несущих конструкций, адаптировать расположение помещений коттеджа и рассмотреть другие ваши пожелания.

У вас уже есть проект!

Давайте его обсудим!

Мы составим смету и оптимизируем расходы. Доработаем ваш проект, или создадим новый.
Мы ответим Вам в течение 24 часов
Прикрепить файл

Похожие проекты

Дом из полнотелого кирпича Вешки 1 двухэтажный 13х13

Получить презентацию проекта

Дом из щелевого кирпича Вешки 2 двухэтажный 14х14

Получить презентацию проекта
Записаться на встречу в офисе
Прикрепить файл
x
x
x
Позвонить в компанию
или
Заказать обратный звонок
Обратная форма связи
Заявка на бесплатную
видеоконсультацию