Дом из несъемной опалубки Элтон двухэтажный 13х13

Получить презентацию проекта

Лучший дом для вашей семьи

Представляем недорогой коттедж "Элтон" реализованный сотрудниками компании Монолит-домстрой по индивидуальному заказу. Преимуществом данного проекта является удобная эксплуатируемая кровля. Кровля такого типа экономически прибыльна, потому что позволяет расширить полезное пространство дома без дополнительных денежных расходов. На этой крыше можно комфортно обустроить: джакузи, мангал, зону отдыха, шезлонги для загара, разбить декоративный сад и многое другое. И при этом какой роскошный вид на окружающий мир откроется с крыши вашего дома!

Построим вашу мечту

Характеристики проекта

  • Размер дома 13х13 м
  • Число полных этажей 2
  • Высота потолков 3.2 м
  • Мансарда нет
  • Цокольный этаж нет
  • Площадь кухни 15 м2
  • Фундамент УШП
  • Стены Несъемная опалубка
  • Фасад Комбинированный фасад
  • Навес для машины нет
  • Гараж нет
  • Гараж на 2 машины нет
  • Веранда нет
  • Балкон да
  • Камин да
  • Баня нет
  • Бассейн нет
  • Второй свет нет
  • Барбекю нет
  • Стиль дома Современный Хай-тек Модерн Лофт Европейский Прованс Скандинавский

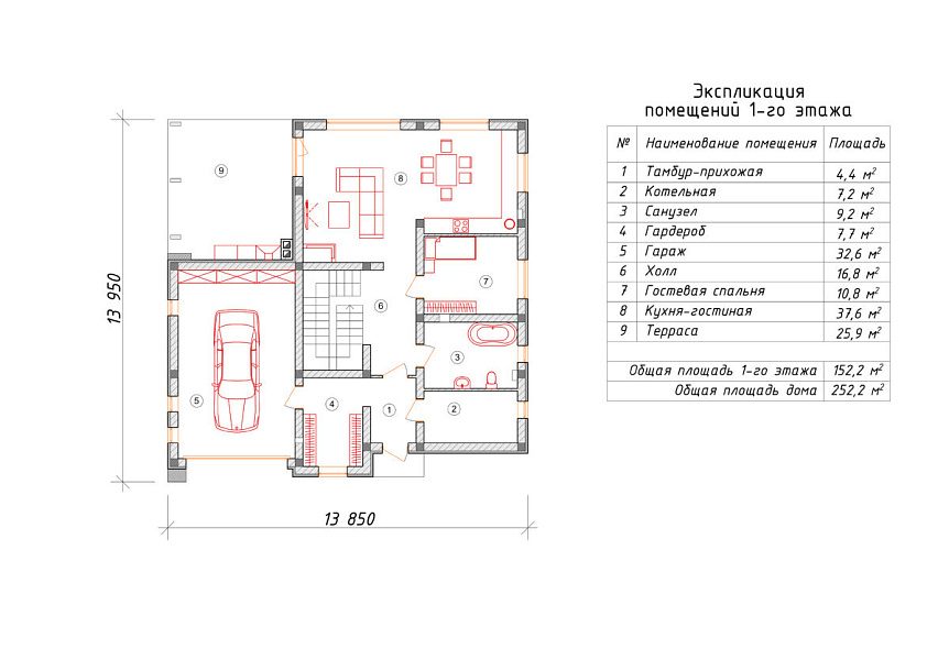
Описание дома

Проектом предусматривается двухэтажное строение с мембранной плоской крышей. Планировка внутреннего пространства отличается разумностью и принимает во внимание размещение инженерных систем, вид из окон и расположение сторон света. Проектом дома предусматривается 4 уютных спальни и 2 санузла. Планировочная площадь всех помещений дома составляет 252 м2, размер кухонного пространства 15 м2. В этом доме мы советуем применить тип фундамента - УШП фундамент. Это наиболее энергоэффективный фундамент, великолепно подходящий для загородного строительства в нашей климатической зоне. Материал несущих конструкций данного дома - несъемная опалубка. По вашему решению наши конструкторы изменят проект под другой материал, архитекторы симметрично развернут планировки этажей и учтут любые другие ваши идеи.

Построено по этому проекту

п. Образцово
п. Образцово
Подробнее
Площадь дома: 230 м2
Стоимость: 12 077 765 ₽

У вас уже есть проект!

Давайте его обсудим!

Мы составим смету и оптимизируем расходы. Доработаем ваш проект, или создадим новый.
Мы ответим Вам в течение 24 часов
Прикрепить файл

Похожие проекты

Дом Солвейг двухэтажный 12х12

Получить презентацию проекта

Дом из пеноблоков Акира-10 двухэтажный 15х15

Получить презентацию проекта
Записаться на встречу в офисе
Прикрепить файл
x
x
x
Позвонить в компанию
или
Заказать обратный звонок
Обратная форма связи
Заявка на бесплатную
видеоконсультацию