Дом из несъемной опалубки Аккорд-2 двухэтажный 14х14

Получить презентацию проекта

Лучший дом для вашей семьи

Проект коттеджа премиального ценового сегмента "Аккорд-2" реализованный специалистами компании Монолит-домстрой по индивидуальному заказу. Этот солидный коттедж привлекает строгостью линий и наличием навеса на 2 автомобиля. Фасадная отделка облицовочным кирпичом придаёт этому коттеджу классический вид. Просторная гостиная создаст неповторимую обстановку для встречи всей семьей за большим столом, а большая терраса позволит насладиться друзьям и родственником чаепитием на природе.

Построим вашу мечту

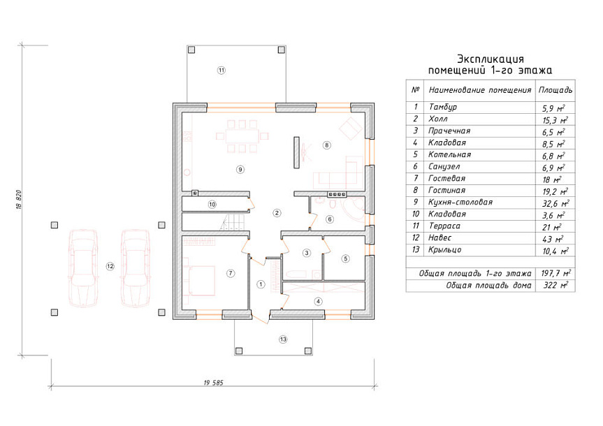
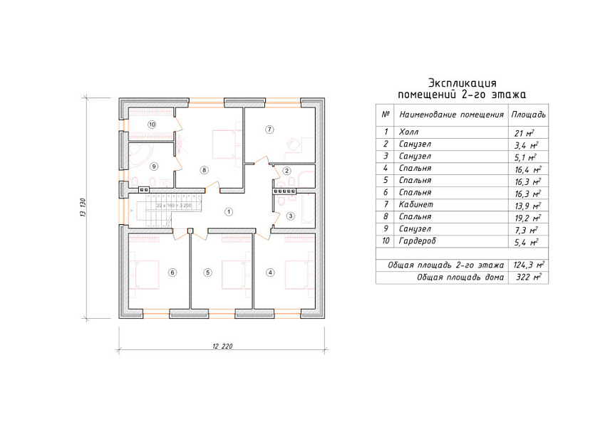
Характеристики проекта

  • Размер дома 14х14 м
  • Число полных этажей 2
  • Высота потолков 3.4 м
  • Мансарда нет
  • Цокольный этаж нет
  • Площадь кухни 33 м2
  • Фундамент Финский фундамент
  • Стены Несъемная опалубка
  • Фасад Облицовочный кирпич
  • Навес для машины да
  • Гараж нет
  • Гараж на 2 машины нет
  • Веранда нет
  • Балкон да
  • Камин нет
  • Баня нет
  • Бассейн нет
  • Второй свет нет
  • Барбекю нет
  • Стиль дома Немецкий Европейский

Описание дома

Дом в два этажа с полезным чердаком. Планировка этажей выделятся продуманностью и принимает во внимание размещение инженерных систем, вид из окон и расположение сторон света. Планировочные планы предусматривают 5 комфортных спален и 4 санузла. Размер всех помещений дома - 322 м2, площадь кухни 33 м2. В данном коттедже мы предлагаем применить вариант фундамента - бетонная мелкого заложения лента с утеплением ЭППС. Этот тип фундамента отлично подходит если в пятне застройки большой перепад уровня земли, или хозяин требует приподнять над землей высотную отметку комнат. Материал стен этого коттеджа - несъемная опалубка. В случае необходимости мы можем переделать проект под другой материал стен, актуализировать расположение комнат дома и рассмотреть любые другие ваши условия.

Построено по этому проекту

к/п "Апрелевка-Парк"
к/п "Апрелевка-Парк"
Подробнее
Площадь дома: 322 м2
Стоимость: 16 358 301 ₽

У вас уже есть проект!

Давайте его обсудим!

Мы составим смету и оптимизируем расходы. Доработаем ваш проект, или создадим новый.
Мы ответим Вам в течение 24 часов
Прикрепить файл

Похожие проекты

Вы недавно смотрели

Дом из газосиликата Лахти 9 двухэтажный 14х14

Получить презентацию проекта

Дом из газобетона Ричмонд 3 двухэтажный 12х12

Получить презентацию проекта
Записаться на встречу в офисе
Прикрепить файл
x
x
x
Позвонить в компанию
или
Заказать обратный звонок
Обратная форма связи
Заявка на бесплатную
видеоконсультацию