Дом из газосиликата Руза 3 двухэтажный 12х12

Получить презентацию проекта

Лучший дом для вашей семьи

Представляем вашему вниманию проект коттеджа наиболее популярного ценового диапазона "Руза 3" спроектированный нашими архитекторами по эскизам заказчика. Важным достоинством этого дома является ощущение легкости и света внутри дома, которое возникает по причине больших светлых окон. Считаем необходимым сказать, что вопреки ошибочному мнению панорамные окна ведут к уменьшению стоимости строительства дома. В настоящее время технологии позволяют увеличивать высоту и ширину остекления, не уменьшая энергоэффективность дома.

Построим вашу мечту

Характеристики проекта

  • Размер дома 12х12 м
  • Число полных этажей 2
  • Высота потолков 3 м
  • Мансарда нет
  • Цокольный этаж нет
  • Площадь кухни 8 м2
  • Фундамент УШП
  • Стены Газосиликат
  • Фасад Комбинированный фасад
  • Навес для машины нет
  • Гараж нет
  • Гараж на 2 машины нет
  • Веранда нет
  • Балкон да
  • Камин нет
  • Баня нет
  • Бассейн нет
  • Второй свет да
  • Барбекю нет
  • Стиль дома Немецкий Европейский Итальянский

Описание дома

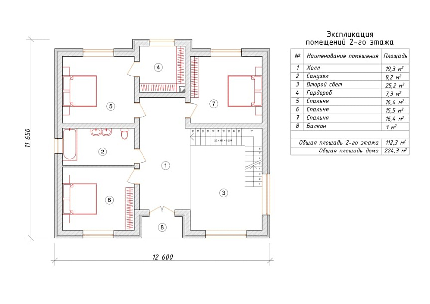
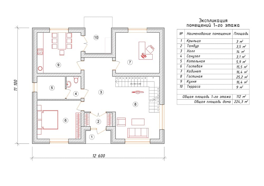
Проектом предусматривается двухэтажный коттедж и нежилой чердак. Компоновка пространства дома характеризуется функциональностью и принимает во внимание размещение инженерных систем, вид из окон и расположение сторон света. Проект включает 4 уютных спальни и 2 санузла. Размер всех помещений коттеджа - 224 м2, площадь кухонного пространства 8 м2. В этом коттедже мы предлагаем применить фундамент - утепленная шведская плита. Это самый теплый фундамент, великолепно подходящий для коттеджного строительства в нашей климатической зоне. Материал несущих конструкций этого коттеджа - газосиликат. В случае необходимости наши конструкторы переделают проект под другой материал стен, архитекторы актуализируют жилое пространство и примут во внимание другие ваши требования.

Построено по этому проекту

г. Руза
г. Руза
Подробнее
Площадь дома: 178 м2
Стоимость: 9 877 496 ₽

У вас уже есть проект!

Давайте его обсудим!

Мы составим смету и оптимизируем расходы. Доработаем ваш проект, или создадим новый.
Мы ответим Вам в течение 24 часов
Прикрепить файл

Похожие проекты

Дом Солвейг двухэтажный 12х12

Получить презентацию проекта

Дом из керамзитобетона Гассен 6 двухэтажный 12х12

Получить презентацию проекта
Записаться на встречу в офисе
Прикрепить файл
x
x
x
Позвонить в компанию
или
Заказать обратный звонок
Обратная форма связи
Заявка на бесплатную
видеоконсультацию