Дом из пеноблоков Руза-2 двухэтажный 11х11

Получить презентацию проекта

Лучший дом для вашей семьи

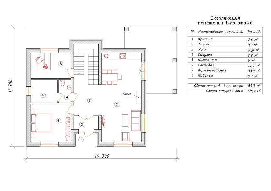
Представляем вашему вниманию недорогой в строительстве коттедж "Руза-2" спроектированный нашими архитекторами по индивидуальному заказу. Изюминка данного дома это - роскошный камин, который находится в гостиной и создаёт волшебную атмосферу. Помимо эстетического удовольствия камин является эффективным нагревательным прибором, который быстро согреет коттедж промозглыми осенними вечерами.

Построим вашу мечту

Характеристики проекта

  • Размер дома 11х11 м
  • Число полных этажей 2
  • Высота потолков 3 м
  • Мансарда нет
  • Цокольный этаж нет
  • Площадь кухни 32 м2
  • Фундамент УШП
  • Стены Пеноблоки
  • Фасад Штукатурка
  • Навес для машины нет
  • Гараж нет
  • Гараж на 2 машины нет
  • Веранда нет
  • Балкон нет
  • Камин да
  • Баня нет
  • Бассейн нет
  • Второй свет нет
  • Барбекю нет
  • Стиль дома Европейский Прованс

Описание дома

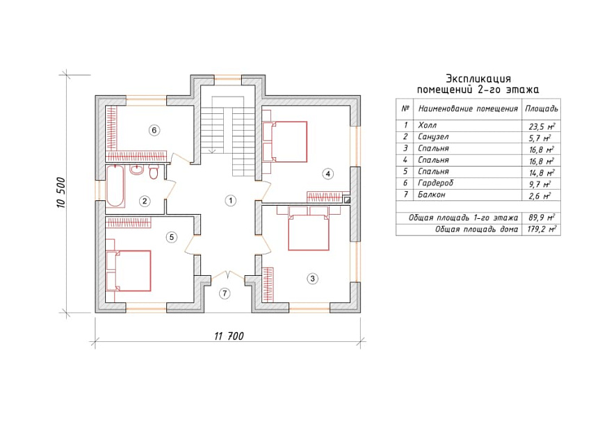
Проектом предусматривается двухэтажный дом с функциональным чердаком. Планировка помещений выделятся разумностью и учитывает размещение инженерных систем, вид из окон и расположение сторон света. Планировочные планы включают 4 комфортных спальни и 2 санузла. Размер всех помещений здания - 179 м2, площадь кухни 32 м2. В данном доме мы советуем использовать тип фундамента - утепленный шведский фундамент. Это наиболее современный фундамент, великолепно подходящий для загородного строительства в нашем холодном климате. Материал несущих стен - пеноблоки. В случае необходимости наши конструкторы поменяют данный проект под другой материал несущих конструкций, архитекторы детализируют планы этажей и учтут другие идеи клиента.

Построено по этому проекту

г. Руза
г. Руза
Подробнее
Площадь дома: 178 м2
Стоимость: 8 543 388 ₽

У вас уже есть проект!

Давайте его обсудим!

Мы составим смету и оптимизируем расходы. Доработаем ваш проект, или создадим новый.
Мы ответим Вам в течение 24 часов
Прикрепить файл

Похожие проекты

Вы недавно смотрели

Дом из пеноблоков Архитек двухэтажный 13х13

Получить презентацию проекта

Дом из поризованного кирпича Калдис 2 двухэтажный 10x12

Получить презентацию проекта
Записаться на встречу в офисе
Прикрепить файл
x
x
x
Позвонить в компанию
или
Заказать обратный звонок
Обратная форма связи
Заявка на бесплатную
видеоконсультацию