Дом Штайнер двухэтажный 13х13

Получить презентацию проекта

Лучший дом для вашей семьи

Проект дома среднего ценового диапазона "Штайнер" спроектированный нашими сотрудниками по рекомендациям заказчика. Важное конкурентное преимущество данного дома это - удобная эксплуатируемая крыша. Такая кровля экономически выгодна так как позволяет увеличить жилое пространство дома без лишних финансовых затрат. На этой крыше можно организовать просторную террасу для утреннего кофе. И при этом какой несравненный вид на окружающий ландшафт откроется с крыши вашего дома!

Построим вашу мечту

Характеристики проекта

  • Размер дома 13х13 м
  • Число полных этажей 2
  • Высота потолков 3.2 м
  • Мансарда нет
  • Цокольный этаж нет
  • Площадь кухни 16 м2
  • Фундамент УШП
  • Стены Ячеистый
  • Фасад Комбинированный фасад
  • Навес для машины нет
  • Гараж да
  • Гараж на 2 машины нет
  • Веранда нет
  • Балкон да
  • Камин нет
  • Баня нет
  • Бассейн нет
  • Второй свет нет
  • Барбекю нет
  • Стиль дома Современный Хай-тек Модерн Лофт Европейский Итальянский

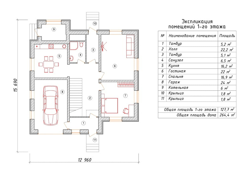
Описание дома

Проектом предусматривается два этажа с мембранной плоской крышей. Планировка помещений выделятся разумностью и учитывает размещение инженерных систем, вид из окон и расположение сторон света. Планировка предусматривает 5 уютных спален и 2 санузла. Размер всех помещений дома - 264 м2, площадь кухни 16 м2. В этом проекте мы предлагаем применить тип фундамента - УШП плита. Это наиболее современный фундамент, оптимально подходящий для загородного строительства в нашем холодном климате. Стены здания - несъемная опалубка. По вашему решению наши конструкторы переделают этот проект под другой материал, архитекторы актуализируют внутреннее пространство и учтут другие идеи заказчика.

У вас уже есть проект!

Давайте его обсудим!

Мы составим смету и оптимизируем расходы. Доработаем ваш проект, или создадим новый.
Мы ответим Вам в течение 24 часов
Прикрепить файл

Похожие проекты

Дом из полнотелого кирпича Пестово двухэтажный 13х13

Получить презентацию проекта

Дом из щелевого кирпича Богарт-4 двухэтажный 12х12

Получить презентацию проекта
Записаться на встречу в офисе
Прикрепить файл
x
x
x
Позвонить в компанию
или
Заказать обратный звонок
Обратная форма связи
Заявка на бесплатную
видеоконсультацию