Дом из несъемной опалубки Базель двухэтажный 13х13

Получить презентацию проекта

Лучший дом для вашей семьи

Представляем вашему вниманию недорогой комфортный коттедж "Базель" созданный архитекторами компании Монолит-домстрой по рекомендациям заказчика. Индивидуальность представленного коттеджа это - функциональная эксплуатируемая кровля. Такая кровля экономически выгодна так как позволяет расширить площадь вашего коттеджа без лишних финансовых затрат. На этой крыше можно комфортно обустроить: джакузи, мангал, зону отдыха, шезлонги для загара, разбить декоративный сад и многое другое. И при этом какой прекрасный вид на окружающий ландшафт откроется с крыши вашего дома!

Построим вашу мечту

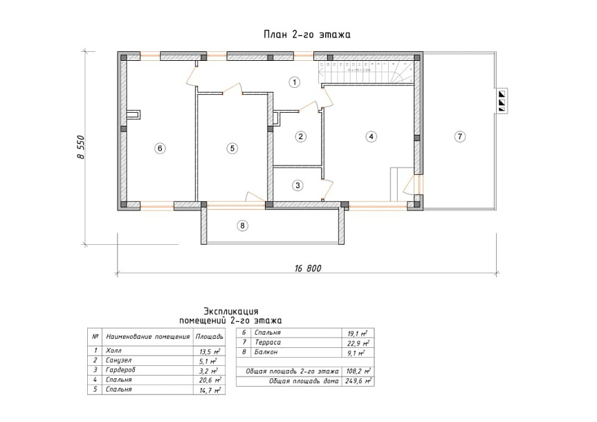
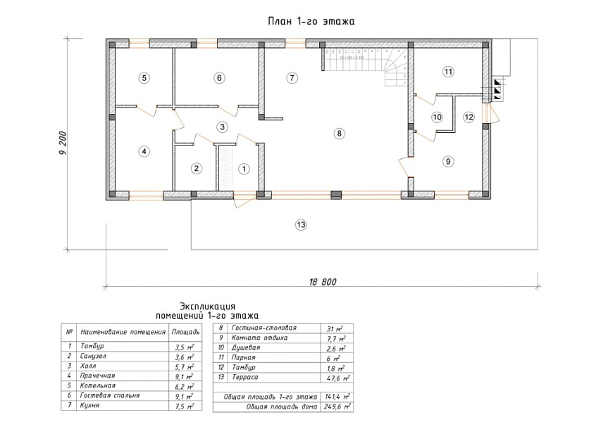
Характеристики проекта

  • Размер дома 13х13 м
  • Число полных этажей 2
  • Высота потолков 3.2 м
  • Мансарда нет
  • Цокольный этаж нет
  • Площадь кухни 30 м2
  • Фундамент УШП
  • Стены Несъемная опалубка
  • Фасад Комбинированный фасад
  • Навес для машины нет
  • Гараж нет
  • Гараж на 2 машины нет
  • Веранда нет
  • Балкон нет
  • Камин да
  • Баня да
  • Бассейн нет
  • Второй свет нет
  • Барбекю да
  • Стиль дома Современный Хай-тек Модерн Лофт Европейский

Описание дома

Проектом предусматривается двухэтажный коттедж с плоской кровлей из ПВХ мембраны. Планировка пространства дома выделятся разумностью и учитывает размещение инженерных систем, вид из окон и расположение сторон света. Планировочные решения предусматривают 4 удобных спальни и 2 санузла. Размер всех помещений коттеджа - 250 м2, размер кухонного пространства 30 м2. В этом доме мы предусматриваем тип фундамента - УШП фундамент. Это наиболее современный фундамент, великолепно подходящий для загородного строительства в нашем холодном климате. Материал стен здания - несъемная опалубка. Мы можем поменять этот проект под другой материал, актуализировать планы этажей и рассмотреть другие пожелания заказчика.

У вас уже есть проект!

Давайте его обсудим!

Мы составим смету и оптимизируем расходы. Доработаем ваш проект, или создадим новый.
Мы ответим Вам в течение 24 часов
Прикрепить файл

Похожие проекты

Дом из щелевого кирпича Гассен двухэтажный 12х12

Получить презентацию проекта

Дом Солвейг двухэтажный 12х12

Получить презентацию проекта
Записаться на встречу в офисе
Прикрепить файл
x
x
x
Позвонить в компанию
или
Заказать обратный звонок
Обратная форма связи
Заявка на бесплатную
видеоконсультацию