Дом Сенеж двухэтажный 12х12

Получить презентацию проекта

Лучший дом для вашей семьи

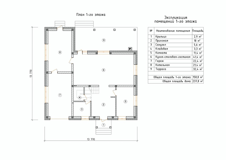
Представляем проект дома недорогого сегмента "Сенеж" разработанный конструкторами нашей компании по индивидуальному заказу. Превосходная черта этого проекта - просторный гаражный бокс на два а/м. Это практичное решение для большой семьи, владеющей несколькими автомобилями. В таком гараже можно с легкостью поместить мотоцикл или квадроцикл, найти свободное место под садовый инвентарь и инструмент. Большое пространство гаража позволит организовать мойку для автомобилей.

Построим вашу мечту

Характеристики проекта

  • Размер дома 12х12 м
  • Число полных этажей 2
  • Высота потолков 3 м
  • Мансарда нет
  • Цокольный этаж нет
  • Площадь кухни 33 м2
  • Фундамент Ленточный
  • Стены Ячеистый
  • Фасад Облицовочный кирпич
  • Навес для машины нет
  • Гараж да
  • Гараж на 2 машины нет
  • Веранда нет
  • Балкон нет
  • Камин нет
  • Баня нет
  • Бассейн нет
  • Второй свет нет
  • Барбекю да
  • Стиль дома Немецкий Русский Европейский

Описание дома

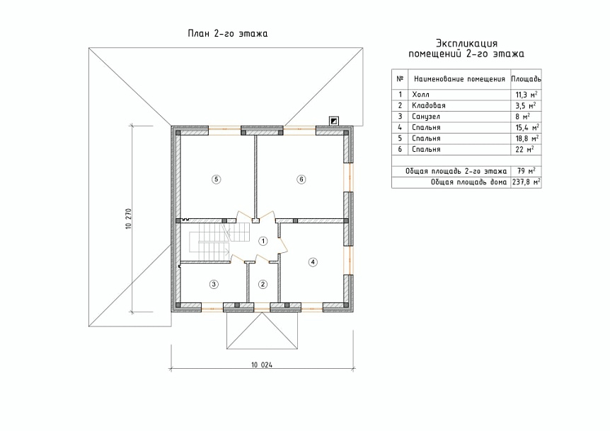
Коттедж в два полных этажа с объемным чердаком. Компоновка комнат выделятся функциональностью и принимает во внимание размещение инженерных систем, вид из окон и расположение сторон света. Планировка дома включает 3 удобных спальни и 2 санузла. Площадь всех помещений коттеджа составляет 237 м2, размер кухонного пространства 33 м2. В данном случае мы рекомендуем применить тип фундамента - УШП плита. Это наиболее современный фундамент, идеально подходящий для индивидуального строительства в нашем холодном климате. Материал стен этого проекта - крупноформатные блоки. В случае необходимости наши конструкторы поменяют проект под другой материал, архитекторы адаптируют планы этажей и рассмотрят другие требования заказчика.

У вас уже есть проект!

Давайте его обсудим!

Мы составим смету и оптимизируем расходы. Доработаем ваш проект, или создадим новый.
Мы ответим Вам в течение 24 часов
Прикрепить файл

Похожие проекты

Дом из керамзитобетона Дионис двухэтажный 15х15

Получить презентацию проекта

Дом на монолитном каркасе Богарт-5 двухэтажный 13х13

Получить презентацию проекта
Записаться на встречу в офисе
Прикрепить файл
x
x
x
Позвонить в компанию
или
Заказать обратный звонок
Обратная форма связи
Заявка на бесплатную
видеоконсультацию