Дом из керамзитобетона Клин одноэтажный 15х15

Получить презентацию проекта

Лучший дом для вашей семьи

Представляем проект частного дома премиального ценового диапазона "Клин" разработанный специалистами компании Монолит-домстрой по эскизам заказчика. Изюминка этого проекта - впечатление торжественности внутреннего пространства дома, которое возникает благодаря огромным окнам. Считаем необходимым сказать, что вопреки широко распространенному мнению большие окна ведут к снижению затрат на строительство. Современные конструктивные решения делают возможным увеличение размеров окон, не снижая энергоэффективность дома.

Построим вашу мечту

Характеристики проекта

  • Размер дома 15х15 м
  • Число полных этажей 1
  • Высота потолков 3.4 м
  • Мансарда нет
  • Цокольный этаж нет
  • Площадь кухни 20 м2
  • Фундамент Финский фундамент
  • Стены Керамзитобетон
  • Фасад Облицовочный кирпич
  • Навес для машины нет
  • Гараж да
  • Гараж на 2 машины нет
  • Веранда нет
  • Балкон нет
  • Камин нет
  • Баня нет
  • Бассейн нет
  • Второй свет нет
  • Барбекю нет
  • Стиль дома Украинский Русский Европейский Райта

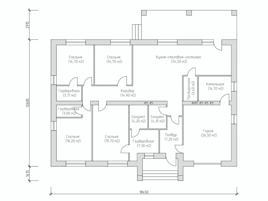
Описание дома

Проект одноэтажный и нежилой чердак. Планировка пространства дома характеризуется продуманностью и учитывает размещение инженерных систем, вид из окон и расположение сторон света. Проект здания включает 4 уютных спальни и 2 санузла. Размер всех помещений здания составляет 215 м2, размер кухонного пространства 20 м2. Для этого проекта мы предусматриваем тип фундамента - бетонная лента мелкого заложения утепленная Такая конструкция фундамента хорошо подходит, когда в пятне застройки существенный перепад высоты рельефа, или хозяин дома планирует поднять выше уровень пола первого этажа. Материал стен здания - керамзитобетон. По вашему решению мы можем переделать проект под другой материал стен, актуализировать планировки дома и рассмотреть другие ваши пожелания.

У вас уже есть проект!

Давайте его обсудим!

Мы составим смету и оптимизируем расходы. Доработаем ваш проект, или создадим новый.
Мы ответим Вам в течение 24 часов
Прикрепить файл

Похожие проекты

Дом из газосиликата Кайрос 2 одноэтажный 14х14

Получить презентацию проекта

Дом из полистеролбетона Контур 2 одноэтажный 14х14

Получить презентацию проекта
Записаться на встречу в офисе
Прикрепить файл
x
x
x
Позвонить в компанию
или
Заказать обратный звонок
Обратная форма связи
Заявка на бесплатную
видеоконсультацию