Дом из несъемной опалубки Равенна двухэтажный 15х15

Получить презентацию проекта

Лучший дом для вашей семьи

Представляем вашему вниманию величественный дом "Равенна" созданный специалистами компании Монолит-домстрой по индивидуальному заказу. Уникальной изюминкой представленного проекта является дровяная паровая баня. Баня принесет здоровье, порадует ароматом дубового веника и вкусным квасом. Во всем мире считается, что баня является залогом хорошего здоровья и долголетия.

Построим вашу мечту

Характеристики проекта

  • Размер дома 15х15 м
  • Число полных этажей 2
  • Высота потолков 3.4 м
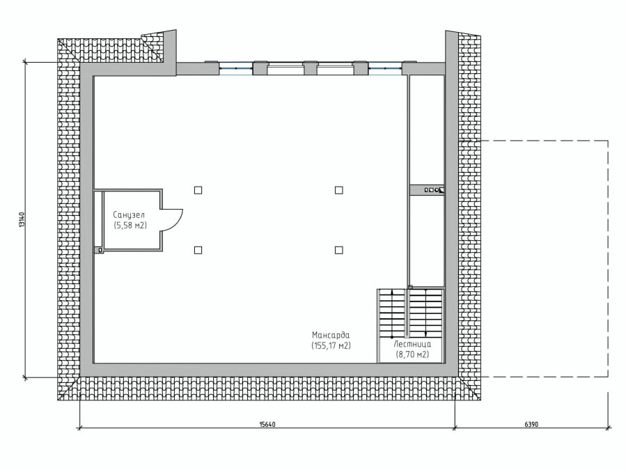
  • Мансарда да
  • Цокольный этаж нет
  • Площадь кухни 20 м2
  • Фундамент Финский фундамент
  • Стены Несъемная опалубка
  • Фасад Комбинированный фасад
  • Навес для машины да
  • Гараж нет
  • Гараж на 2 машины нет
  • Веранда нет
  • Балкон да
  • Камин нет
  • Баня да
  • Бассейн нет
  • Второй свет нет
  • Барбекю нет
  • Стиль дома Шале Американский Немецкий Фахверк Европейский Прованс

Описание дома

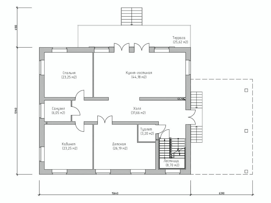
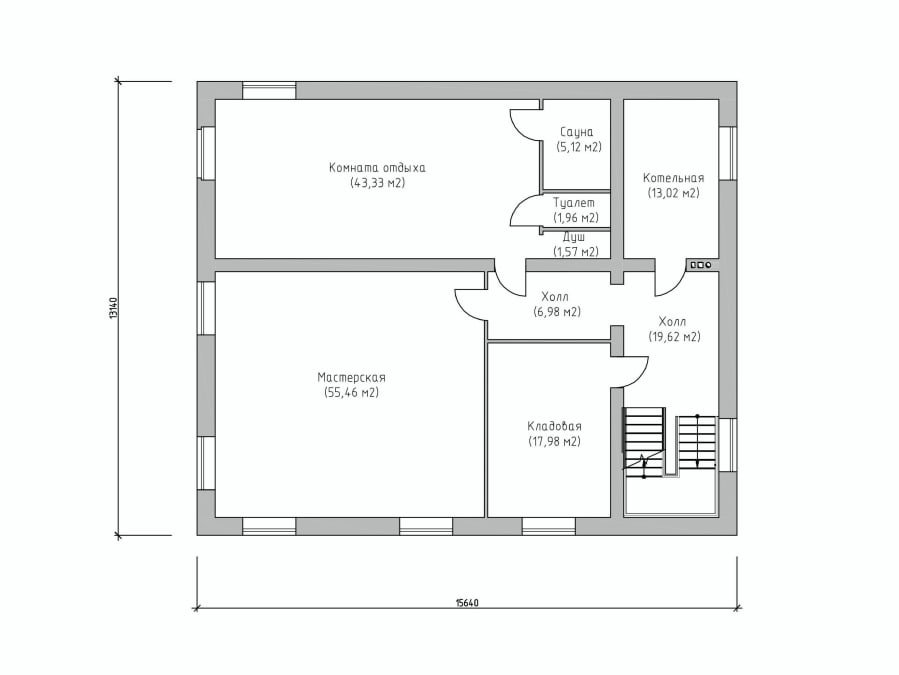
Проектом предусматривается двухэтажное здание плюс жилое мансардное помещение. Планировка пространства дома характеризуется функциональностью и учитывает размещение инженерных систем, вид из окон и расположение сторон света. Поэтажные планы дома включают 2 уютных спальни и 2 санузла. Планировочная площадь всех помещений здания составляет 573 м2, площадь кухни 20 м2. Для этого дома мы рекомендуем применить вариант фундамента - монолитная лента мелкого заложения с утеплением Такой фундамент идеально подходит если в пятне застройки заметный перепад высоты рельефа, или заказчик просит приподнять выше уровень помещений первого этажа. Несущие стены этого здания - несъемная опалубка. По решению заказчика мы можем изменить проект под другой материал стен, адаптировать поэтажные планы дома и принять по внимание другие условия заказчика.

У вас уже есть проект!

Давайте его обсудим!

Мы составим смету и оптимизируем расходы. Доработаем ваш проект, или создадим новый.
Мы ответим Вам в течение 24 часов
Прикрепить файл

Похожие проекты

Вы недавно смотрели

Дом из несъемной опалубки Горки двухэтажный 15х15

Получить презентацию проекта

Дом из несъемной опалубки Горки-2 двухэтажный 15х15

Получить презентацию проекта
Записаться на встречу в офисе
Прикрепить файл
x
x
x
Позвонить в компанию
или
Заказать обратный звонок
Обратная форма связи
Заявка на бесплатную
видеоконсультацию