Дом из крупноформатных Лейпциг одноэтажный с мансардой 15х15

Получить презентацию проекта

Лучший дом для вашей семьи

Представляем стильный коттедж "Лейпциг" спроектированный нашими конструкторами по рекомендациям заказчика. Уникальной чертой представленного проекта является приятное ощущение комфорта, создаваемое функциональным и красивым камином. Помимо эстетического удовольствия камин выступает в качестве функционального нагревательного прибора, который быстро согреет дом холодными зимними вечерами.

Построим вашу мечту

Характеристики проекта

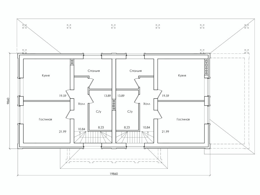
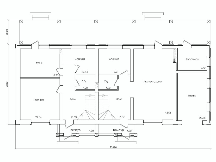
  • Размер дома 15х15 м
  • Число полных этажей 1
  • Высота потолков 3.4 м
  • Мансарда да
  • Цокольный этаж нет
  • Площадь кухни 30 м2
  • Фундамент Финский фундамент
  • Стены Крупноформатные блоки
  • Фасад Облицовочный кирпич
  • Навес для машины нет
  • Гараж да
  • Гараж на 2 машины нет
  • Веранда нет
  • Балкон нет
  • Камин да
  • Баня нет
  • Бассейн нет
  • Второй свет нет
  • Барбекю нет
  • Стиль дома Европейский

Описание дома

Проект одноэтажный и практичное мансардное помещение. Планировка внутреннего пространства отличается продуманностью и принимает во внимание размещение инженерных систем, вид из окон и расположение сторон света. Планировка предусматривает 4 уютных спальни и 4 санузла. Планировочная площадь помещений составляет 416 м2, площадь кухни 30 м2. В данном проекте мы предусматриваем тип фундамента - бетонная лента мелко-заглубленная с утеплением ЭППС Этот тип фундамента хорошо подходит если под домом большой перепад высоты рельефа, или заказчик просит приподнять над землей высотную отметку комнат первого этажа. Материал стен данного коттеджа - крупноформатные блоки. По решению заказчика мы можем изменить данный проект под другой материал, детализировать жилое пространство дома и учесть любые другие пожелания заказчика.

У вас уже есть проект!

Давайте его обсудим!

Мы составим смету и оптимизируем расходы. Доработаем ваш проект, или создадим новый.
Мы ответим Вам в течение 24 часов
Прикрепить файл

Похожие проекты

Дом из пеноблоков Дарьино одноэтажный с мансардой 15х15

Получить презентацию проекта

Дом из теплоблоков Дарьино 2 одноэтажный с мансардой 13х13

Получить презентацию проекта
Записаться на встречу в офисе
Прикрепить файл
x
x
x
Позвонить в компанию
или
Заказать обратный звонок
Обратная форма связи
Заявка на бесплатную
видеоконсультацию