Баня из газобетона 8x12 Байкал-2

Получить презентацию проекта

Лучший дом для вашей семьи

Представляем вашему вниманию проект частного дома в стиле минимализм "Байкал (баня)" разработанный нашими архитекторами по эскизам заказчика. Отличительная черта представленного дома это - жаркая баня на дровах. Баня подарит радость жизни, порадует ароматом березового веника и вкусным квасом. Во всем мире считается, что баня обеспечит хорошее здоровье и долголетие.

Построим вашу мечту

Характеристики проекта

  • Размер дома 8x12 м
  • Число полных этажей 1
  • Высота потолков 2.8 м
  • Мансарда нет
  • Цокольный этаж нет
  • Площадь кухни 15 м2
  • Фундамент Плита
  • Стены газобетон
  • Фасад Облицовочный кирпич
  • Навес для машины нет
  • Гараж нет
  • Гараж на 2 машины нет
  • Веранда нет
  • Балкон нет
  • Камин да
  • Баня да
  • Бассейн да
  • Второй свет нет
  • Барбекю нет
  • Стиль дома Американский Европейский

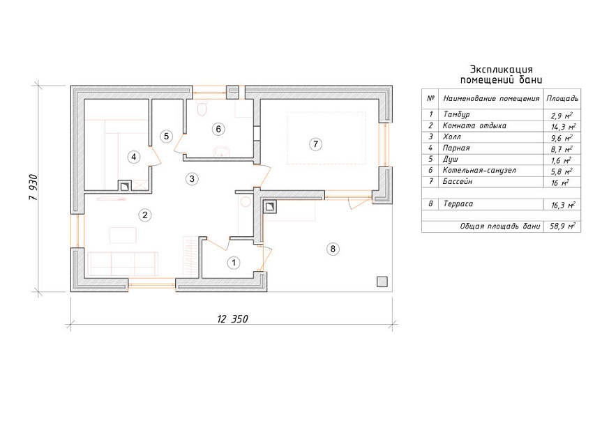
Описание дома

Проект в один полный этаж и холодный чердак. Компоновка внутренних помещений выделятся разумностью и учитывает размещение инженерных систем, вид из окон и расположение сторон света. Поэтажные планы дома включают уютных спален и 1 санузел. Размер всех помещений дома составляет 59 м2, площадь кухни 15 м2. В этом случае мы предусматриваем тип фундамента - плита толщиной 250 мм. Это практичный и наиболее экономически целесообразный фундамент из всех. Материал несущих конструкций этого здания - пеноблоки. Мы можем переделать проект под другой материал несущих конструкций, детализировать планировки этажей и рассмотреть любые другие ваши требования.

Построено по этому проекту

д. Бараново, 3 здания
д. Бараново, 3 здания
Подробнее
Площадь дома: 448 м2
Стоимость: 3 172 985 ₽

У вас уже есть проект!

Давайте его обсудим!

Мы составим смету и оптимизируем расходы. Доработаем ваш проект, или создадим новый.
Мы ответим Вам в течение 24 часов
Прикрепить файл

Похожие проекты

Дом из двойного бруса Полоцк одноэтажный 9х9

Получить презентацию проекта

Дом из клееного бруса Полоцк-2 одноэтажный 9х9

Получить презентацию проекта
Записаться на встречу в офисе
Прикрепить файл
x
x
x
Позвонить в компанию
или
Заказать обратный звонок
Обратная форма связи
Заявка на бесплатную
видеоконсультацию